Sätta in braskamin

Här kan du se vilka handlingar du behöver bifoga med din ansökan och hur ritningarna ska se ut.

Att sätta in braskamin

Om du vill installera en ny braskamin, väsentligt ändra en du redan har, eller sätta in en kassett i en tidigare öppen eldstad krävs att du gör en anmälan till samhällsplaneringskontoret och får ett startbesked innan du börjar. Det krävs ingen anmälan att byta ut en braskamin som ansluter till en redan befintlig skorsten/rökkanal.

Anmälan

Anmälan om att sätta in braskamin gör du till samhällsplaneringskontoret. Du  anmäler om ej bygglovspliktig åtgärd via e-tjänst.
E-tjänster - bygga nytt, bygga om eller riva

Handlingar som ska skickas med i anmälan om eldstad:

  • Planritning i skala 1:100 där eldstadens placering markeras
  • Enkel situationsplan i skala 1:400 eller 1:500 (kan göras via Nässjökartan)
  • Fasadritningar i skala 1:100 där eventuell ny skorsten eller rökkanal ritas in
  • Produktbeskrivning för eldstad och rökkanal
  • Kontrollplan (exempel på kontrollplan)

Kontrollplan eldstad och rökkanal pdf, 71.7 kB.

Fackmässiga ritningar

Ritningarna som bifogas med ansökan ska vara:

  • Skalenliga och måttsatta
  • Ritade med datorbaserat verktyg (CAD) eller noggrant med linjal.
  • Ritade på vitt olinjerat och orutat papper.
  • Svartvita.
  • Ritningarna ska innehålla skallinjal och ritningshuvud.

Fasadritning skala 1:100

Fasadritningar visar husets fasader sedda rakt framifrån. Här visar du skorstenens storlek och placering. Kom ihåg att skorstenens mynning behöver ligga över tacknocken och minst 1 meter över taktäckningen. Redovisa fasadritningar från relevanta väderstreck.

Fasadritningarna redovisas i skala 1:100 och ska innehålla namn på fasad efter väderstreck, skorsten, skallinjal samt ritningshuvud.

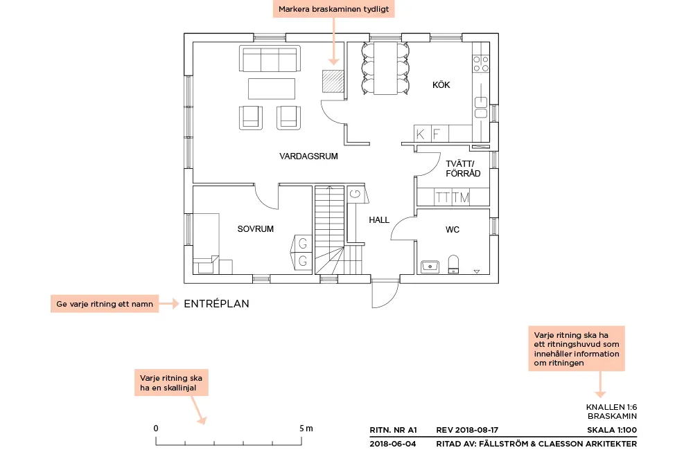
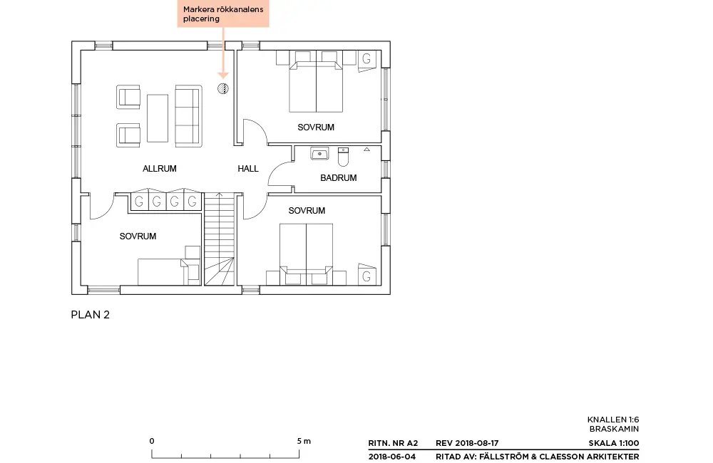
Planritning skala 1:100

Planritningen är ett horisontellt snitt genom huset. Den visar planlösningen och braskaminens placering. Om huset har flera våningar ska alla redovisas så att vi kan bedöma rökkanalens placering.

Planritningen redovisas i skala 1:100 och ska innehålla braskamin, fast inredning, rumsbeteckningar, skallinjal samt ritningshuvud.

Prestandadeklaration

Prestandadeklaration bifogas i ansökan. Tillverkaren ska redovisa en prestandadeklaration som redovisar utsläpp av koloxid och verkningsgrad.

Handläggning av ärendet

Vi ska handlägga ditt ärende inom 4 veckor. För att vi ska kunna bedöma din ansökan är det viktigt att den är komplett med fackmässiga ritningar. Studera därför exempelritningarna noga för att se vad som ska ingå. Om din ansökan inte är fullständig , kan vi begära komplettering vilket gör att handläggningstiden blir längre


Dolt fält, måste ligga längst upp
Vad kan vi göra bättre?
Berätta vad vi kan göra bättre på den här sidan. Dina synpunkter är värdefulla för oss. Din medverkan hjälper oss att förbättra webbplatsen.