Bygga hus
Här kan du se vilka handlingar du behöver bifoga med din ansökan och hur ritningarna ska se ut.
- Om bygglovet
- Ansökan
- Fackmässiga ritningar
- Fasadritning skala 1:100
- Planritning skala 1:100
- Sektionsritning skala 1:100
- Situationsplan skala 1:400 eller 1:500
- Nybyggnadskarta
- Kontrollansvarig (KA)
- Förslag till kontrollplan
- Konstruktionsdokumentation
- Konstruktionsritningar
- VA-anslutning
- Redovisning av dagvattenhantering
- VVS-ritningar
- Energiberäkning
- Färdigställandeskydd
- Projekterings-PM geoteknik
- Fuktsäkerhetsbeskrivning
- Handläggning av ditt ärende
Om bygglovet
Med ett småhus avses ett enbostadshus, tvåbostadshus, radhus, kedjehus eller fritidshus. För nybyggnad av småhus krävs bygglov. Exempelritningarna visar nybyggnad av ett enbostadshus, men de går även att använda till nybyggnad av andra sorters småhus.
Ansökan
I första steget när du ansöker om bygglov bifogar du handlingarna för Fasadritning skala, Planritning, Sektionsritning, Situationsplan samt Kontrollansvarig (KA).
I andra steget kompletterat du med handlingarna för Förslag till kontrollplan, Konstruktionsdokumentation, Konstruktionsritningar, VA-anslutning, Redovisning av dagvattenhantering, VVS-ritningar, Energiberäkning, Färdigställandeskydd, Projekterings-PM geoteknik samt Fuktsäkerhetsbeskrivning
Du ansöker via e-tjänst.
E-tjänster - bygga nytt, bygga om eller riva
Fackmässiga ritningar
Ritningarna som bifogas med ansökan ska vara:
- Skalenliga och måttsatta ritade med datorbaserat verktyg (CAD) eller noggrant med linjal.
- Ritade på vitt olinjerat och orutat papper.
- Svartvita.
- Ritningarna ska innehålla skallinjal och ritningshuvud.
Fasadritning skala 1:100
Fasadritningar visar husets fasader sedda rakt framifrån. Förutom att visa fasadens utseende visar de marknivån, viktiga mått och vilka material och kulörer som ska användas. Vid en bygglovsprövning är det viktigt att se hur byggnaden passar in i sitt sammanhang. Detaljer som till exempel fönsterkarmar och plåtarbeten är viktiga för helhetsupplevelsen av fasaden. Ritningarna ska vara detaljerade och ha korrekta proportioner. Redovisa fasadritningar av huset från alla relevanta väderstreck.
Fasadritningarna redovisas i skala 1:100 och ska innehålla namn på fasad efter väderstreck, material- och kulörbeskrivning, marknivå från tomtgräns (TG) till tomtgräns och streckad linje som visar tidigare marknivå om den ändras, skallinjal samt ritningshuvud.
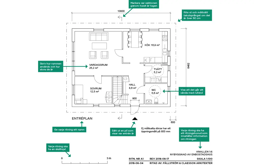
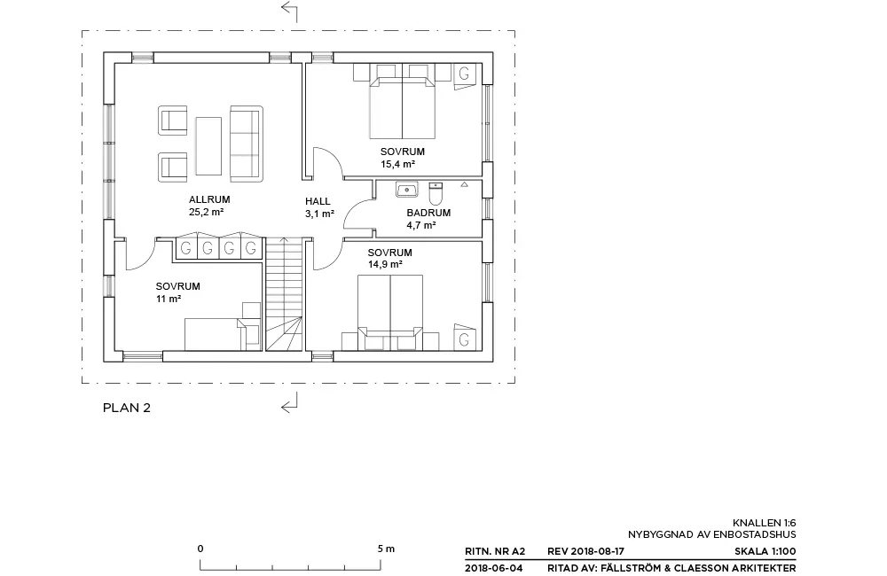
Planritning skala 1:100
Planritningen är ett horisontellt snitt genom huset. Den visar bland annat planlösningen, viktiga mått, hur huset kan möbleras enligt tillgänglighetskraven i Boverkets byggregler och var fönstren är placerade.
Planritningen redovisas i skala 1:100 och ska innehålla byggnadens yttermått, fast inredning, öppningsmått för dörrar, rumsbeteckningar, rumsstorlek, tillgänglig möblering, tillgänglighet med rullstol i mindre utrymmen (visas med vändcirklar med 1,3 m diameter), takutsprång med avståndsmått om det är över 50 cm (ritas med prickstreckad linje), sektionsmarkering, entrépil, skallinjal samt ritningshuvud
Sektionsritning skala 1:100
Sektionsritningen är ett vertikalt snitt genom huset. Den visar bland annat våningsplan, rumshöjder och taklutning och behövs för att kunna bedöma byggnaden utifrån gällande bestämmelser. Sektionsritningen är också viktig för att förstå hur byggnaden förhåller sig till marken.
Sektionsritningen redovisas i skala 1:100 och ska innehålla rumshöjd, nockhöjd, takvinkel, färdig golvhöjd (FG) för entréplan, redovisning av eventuell nivåskillnad i golv, marklinje, skallinjal samt ritningshuvud.

Situationsplan skala 1:400 eller 1:500
En situationsplan innehåller detaljerad information om tomten/fastigheten och visar huset är placerat i förhållande till tomtgränser och övriga byggnader. Det är viktigt att placeringen och måttsättningen är korrekt.
Situationsplanen redovisas i skala 1:400 eller 1:500 och ska innehålla huset du söker bygglov för, eventuella byggnader som ska rivas, färdig golvhöjd (FG för entréplanet, måttsättning till tomtgräns minst två med mått som är vinkelräta mot tomtgränsen samt entrépil.
Kartan för situationsplanen kan du hämta i kommunens kartjänst Nässjökartan. Genom att söka på din fastighetsbeteckning får du kartan över tomten/fastigheten som du kan skriva ut i pdf-format.
Nässjökartan Länk till annan webbplats, öppnas i nytt fönster.
Nybyggnadskarta
Ärendet kan behöva kompletteras med en nybyggnadskarta. Handläggaren som prövar ditt ärende tar kontakt med dig och ber dig komplettera med detta. Här kan du läsa mer om vad en nybyggnadskarta är,
Nybyggnadskarta
Kontrollansvarig (KA)
Kontrollansvarig kan behövas beroende på hur komplicerat och stort lagstiftningen följs i ditt byggprojekt, bland annat genom att hjälpa dig att ta fram ett förslag till kontrollplan och se till att kontrollplanen följs. En KA ska vara certifierad och ha självständig ställning, vilket innebär att denne inte får vara släkt med eller arbeta på samma företag som den som bygger. Du kan själv hitta certifierade KA på Boverkets hemsida. Tänk på att du måste kontakta KA före du anmäler denna i ditt ärende.
Förslag till kontrollplan
Kontrollplanen är ett dokument som beskriver vilka kontroller som ska göras under byggnationen. I kontrollplanen ska det bland annat stå vad som ska kontrolleras, på vilket sätt kontrollerna görs och vad kontrollresultatet ska jämföras mot. Det ska också framgå vem som ska utföra kontrollerna. Den som själv bygger eller beställer byggnadsarbete (byggherre) ska med stöd av den kontrollansvarige, ta fram ett förslag till kontrollplan.
Konstruktionsdokumentation
Konstruktionsdokumentation är ett dokument som beskriver husets bärande konstruktion. Den ska innehålla förutsättningarna för dimensioneringen och utförandet. Förutsättningarna för takstolarnas dimensionering och utförande varierar till exempel beroende på hur många våningar huset ska ha.
Konstruktionsritningar
Konstruktionsritningarna ska visa huset uppbyggnad. Ritningarna ska innehålla tekniska delar och viktiga byggnadsdetaljer. Fullständiga konstruktionsritningar omfattar grund-, bjälklags- och takplan samt sektion genom grund, vägg, bjälklag och tak.
VA-anslutning
Du behöver beställa VA-anslutning hos förvaltningen Kretslopp och vatten om du ansluter kommunalt dricksvatten, spillvatten eller dagvatten till din fastighet. Kopian på beställningen bifogas i bygglovsansökan.
Redovisning av dagvattenhantering
Redovisning av dagvattenhantering är en beskrivning av hur du tänker ta hand om ditt dagvatten, det vill säga regn- och smältvatten som inte kan tränga ner i marken.
VVS-ritningar
VVS-ritningarna ska visa installationer för vatten, avlopp, värme och ventilation.
Energiberäkning
Energiberäkningen ska beskriva husets energianvändning, exklusive hushållsel. Med husets energianvändning menas byggnadens uppvärmning, tappvarmvatten och andra installationer såsom fläktar och motorer.
Färdigställandeskydd
Ett färdigställandeskydd kan vara en försäkring eller bankgaranti. Den skyddar dig som beställer byggnadsarbete (byggherre) om byggentreprenören skulle gå i konkurs och inte kan slutföra bygget. Ett färdigställandeskydd behövs inte om du bygger åt dig själv, om du bygger till ett fritidshus eller om vi, under ärendets gång, bedömer att det inte finns behov av ett färdigställandeskydd.
Projekterings-PM geoteknik
Kortfattad beskrivning av de geotekniska förhållandena med ett grundläggningsförslag för aktuell byggnad. Det geotekniska PM:et ska tas fram av en sakkunnig.
Fuktsäkerhetsbeskrivning
I en fuktsäkerhetsbeskrivning redovisas vilka åtgärder som görs för att hantera fuktproblematiken från byggskedet fram till färdig byggnad.
Handläggning av ditt ärende
Vi ska handlägga ditt ärende inom 10 veckor. För att vi ska kunna bedöma din anmälan är det viktigt att den är komplett med fackmässiga ritningar. Studera exempelritningarna noga för att se vad som ska ingå. Om din ansökan inte är fullständig kan vi begära komplettering.
Kontakt
Samhällsplaneringskontoret
0380-51 80 00
samhallsplaneringskontoret@nassjo.se
